
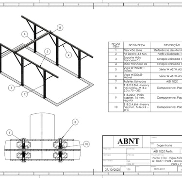
Engenharia Detalhada e Documentação Técnica Precisa














Validação FEA Precisão nos Materiais Melhor Execução Menor Custo


Desenvolvimento Técnico
Criamos projetos CAD e CAE que atendem às normas vigentes, garantindo segurança e eficiência para cada etapa do seu empreendimento.






